закрыть
Киев
Киев
Продажа квартир
Все фильтры 0
Скрыть фильтры
Все фильтры 0

Продажа квартир ул. Змиенко

Найдено: 28 объектов

Без комиссии! Продажа 2 к квартиры 66,15 м2 ЖК Варшавский 3, ул. Всеволода Змиенка, 30 с ремонтом

175 000 $*
2 652 $ / м2*
Без комиссии
2 комнаты 66/26/21 м2 15/25 эт.
Новострой
С мебелью
Укрытие
Спецпроект
С ремонтом

Без комиссии для покупателя. ЖК «Варшавский-3», Подольский район, ул. Всеволода Змиенко, дом. 30. Дом введен в эксплуатацию. Предлагается к продаже изысканная 2-х комнатная квартира в современном доме 2025 года постройки. Расположена на 15 этаже из 22. Планировка и площади: • общая площадь - 65,8 кв.м • жилая - 25,7 кв.м • кухня-гостиная - 20,9 кв.м Квартира полностью укомплектована встроенной техникой и мебелью и готова к комфортному проживанию. Функциональная планировка: просторная кухня-гостиная, две раздельные спальни, гардеробная комната, два санузла. Интерьер выполнен по индивидуальному дизайн-проекту с использованием современных технологий и премиальных материалов. Технические и дизайнерские преимущества: • дверь скрытого монтажа • стены под покраску • декоративное покрытие из микроцемента в санузлах, коридоре и входной группе • входная группа и встроенная кухня с фасадами AGT, Egger, изготовленными под заказ • встроенный холодильник • посудомоечная машина • стирально-сушильная машина • бойлер 200 л • два телевизора • управляемая со смартфона бытовая техника Samsung • гипсовый потолок с многоуровневым освещением, эффектно подчеркивающий функциональные зоны гостиной, кухни, обеденной зоны, гардероба, зеркал и карнизов. • подогрев полов в санузлах, прихожей и входной группе • два инверторных кондиционера Gree • инвертор 6,5 кВт • система обратного осмоса и грубой очистки воды на всю квартиру Для вашей безопасности и комфорта: круглосуточная охрана и видеонаблюдение, закрытая территория с детскими и спортивными площадками. В доме — собственная котельная, достаточное количество паркомест, рядом пятиэтажный наземный паркинг. Дом подключен к системе бесперебойного питания. На территории ЖК – развитая инфраструктура: школа, детский сад, кинотеатр, уютные кафе, салоны красоты, продуктовые магазины. В пешей доступности – ТРЦ RETROVILLE, супермаркеты Novus, Leroy Merlin, озеро и лес – идеальные места для прогулок и отдыха. Рядом остановка общественного транспорта. Возобновлено строительство станции метро. Приглашаем на просмотр – эта квартира стоит вашего внимания! Цена 175000 у.е. тел. +38 050 355 37 46 Катерина valion.ua/1144332

Обновлено: 25.03.2026

Продажа 2-комнатной квартиры «Варшавский-З» ул. Всеволода Змиенко 15/2

176 000 $*
2 551 $ / м2*
Без комиссии
2 комнатная 69/27/21 м2 17/23 эт.
єОселя
Новострой
Укрытие
Спецпроект
С ремонтом

Есть генератор для лифта, отопления и воды. Продается 2-комнатная квартира в жилом комплексе «Варшавский-3» ул. Всеволода Змиенко 15/23, дом 10.1. 17-й этаж 25. Общая площадь 69 м 2. Квартира новая, с дизайнерским ремонтом с качественных материалов, полностью оборудованная и готова к заселению. Планировка: 2 отдельные комнаты, просторная кухня-гостиная, гардеробная, ванная комната и балкон. Вся квартира имеет теплый пол и продуманное освещение. Кухня-гостиная с встроенной кухней и бытовой техникой Bosch: холодильник, духовка, микроволновая печь, индукционная плита. Большой раскладной диван, обеденный стол, телевизор и кондиционер. Спальня: кровать 200Х160 с ортопедическим матрасом, большой шкаф с зеркалами, Samsung ТВ, кондиционер, освещение. Вторая комната с гардеробом и освещением - для спальни, детской или кабинета. Ванная комната: ванна, инсталляция, зеркало с освещением, сушилка для полотенец, раковина, стиральная машина и сушилка. Гардеробная: шкафы для хранения, бойлер. Продажа с правом собственности. Безналичный расчет. Цена 176 000 уе. Без комиссии. Моб. (096) 59-43-044 Вита, valion.ua/1145733

Обновлено: 18.03.2026

Без комиссии! Продажа 2 к квартиры 66,15 м2 ЖК Варшавский 3, ул. Всеволода Змиенка, 30 с ремонтом

175 000 $*
2 652 $ / м2*
Без комиссии
2 комнатная 66/26/21 м2 15/25 эт.
Новострой
С мебелью
Укрытие
Спецпроект
С ремонтом

Без комиссии для покупателя. ЖК «Варшавский-3», Подольский район, ул. Всеволода Змиенко, дом. 30. Дом введен в эксплуатацию. Предлагается к продаже изысканная 2-х комнатная квартира в современном доме 2025 года постройки. Расположена на 15 этаже из 22. Планировка и площади: • общая площадь - 65,8 кв.м • жилая - 25,7 кв.м • кухня-гостиная - 20,9 кв.м Квартира полностью укомплектована встроенной техникой и мебелью и готова к комфортному проживанию. Функциональная планировка: просторная кухня-гостиная, две раздельные спальни, гардеробная комната, два санузла. Интерьер выполнен по индивидуальному дизайн-проекту с использованием современных технологий и премиальных материалов. Технические и дизайнерские преимущества: • дверь скрытого монтажа • стены под покраску • декоративное покрытие из микроцемента в санузлах, коридоре и входной группе • входная группа и встроенная кухня с фасадами AGT, Egger, изготовленными под заказ • встроенный холодильник • посудомоечная машина • стирально-сушильная машина • бойлер 200 л • два телевизора • управляемая со смартфона бытовая техника Samsung • гипсовый потолок с многоуровневым освещением, эффектно подчеркивающий функциональные зоны гостиной, кухни, обеденной зоны, гардероба, зеркал и карнизов. • подогрев полов в санузлах, прихожей и входной группе • два инверторных кондиционера Gree • инвертор 6,5 кВт • система обратного осмоса и грубой очистки воды на всю квартиру Для вашей безопасности и комфорта: круглосуточная охрана и видеонаблюдение, закрытая территория с детскими и спортивными площадками. В доме — собственная котельная, достаточное количество паркомест, рядом пятиэтажный наземный паркинг. Дом подключен к системе бесперебойного питания. На территории ЖК – развитая инфраструктура: школа, детский сад, кинотеатр, уютные кафе, салоны красоты, продуктовые магазины. В пешей доступности – ТРЦ RETROVILLE, супермаркеты Novus, Leroy Merlin, озеро и лес – идеальные места для прогулок и отдыха. Рядом остановка общественного транспорта. Возобновлено строительство станции метро. Приглашаем на просмотр – эта квартира стоит вашего внимания! Цена 175000 у.е. тел. +38 050 355 37 46 Катерина valion.ua/1144332

Обновлено: 25.03.2026

Хотите быстро продать квартиру в Киеве?

Продать квартиру

Продажа 1-к квартиры 40м2 ул. Всеволода Змиенко 15/23 ЖК Варшавский 3

91 000 $*
2 275 $ / м2*
1 комната 40/18/12 м2 20/23 эт.
єОселя
Новострой
Спецпроект
С ремонтом

Продажа 1-к квартиры 40 м2. ул. Всеволода Змиенко 15/23 Варшавский 3 Общая площадь 40 м2 жила 18 м2 кухня 12м2 Расположена на 20 этаже 25 этажного дома с аварийным питанием при выключении света. Окна на запад. С хорошим ремонтом, без мебели. Жесткий вентиляционный воздуховод для будущей кухни. С правом собственности, налог 50/50. Возможна продажа по программе Е-оселя, Е- видновлення. цена 91000 у.е. 0503932257 Мария Valion.ua/1144134

Обновлено: 24.03.2026

Продажа 3-к квартиры ул. Всеволода Змиенко 15/23

175 000 $*
2 273 $ / м2*
3 комнатная 77/35/23 м2 11/25 эт.
Новострой
С мебелью
Студия
Укрытие
Спецпроект
С ремонтом

Продажа 3-к квартиры ул. Всеволода Змиенко 15/23. ЖК Варшавский 3. Этаж 11 из 25 Площадь: общая - 77 кв.м. жилая - 35 кв.м. кухня - 23 кв.м. Перепланирована в кухню-студию и 3 отдельные спальни. 2 санузла и 2 гардероба. Квартира полностью укомплектована мебелью и бытовой техникой ведущих мировых производителей. Стены покраска, в кухне-студии, санузлы на полу керамогронит, Подогрев полов 5 зон. В спальнях паркетная доска. Установлено 3 кондиционера. Рядом есть все для комфортной жизни. Цена 175 000 у.е. Александра 067 46 352 46 valion.ua/1143007

Обновлено: 05.03.2026

Продажа: 1 к.кв. 47м2 в ЖК Варшвовский 3 дом. 10,1

109 000 $*
2 370 $ / м2*
Однокомнатная 46/18/14 м2 8/25 эт.
єОселя
Новострой
С мебелью
Спецпроект
С ремонтом

Подольский район, Виноградарь. Ул. Змиенко Всеволода, 15/23, строительный номер 10.1. ЖК Варшавский 3 Продажа квартиры с качественным ремонтом, мебелью. которые исполнены под заказ. Техника мировых брендов. Кухня-гостиная, отдельная спальня, совместный санузел. Рассматриваем продажу по государственным программам. Современная часть города быстро развивается, любимое место для новых покупателей. Надежно построенные строения. Почти через десять лет тысячи новых жителей наслаждаются проживанием в современной части города. Инфраструктура также быстро развивается вместе с бизнесом, услугами, ТРЦ. Сделайте лучший выбор. Цена 109000уе Моб.тел 0982402742, 0953570166 Наталья Valion.ua/1141300

Обновлено: 01.04.2026

Продажа 1-к квартира ул. Змиенко Всеволода 30

115 500 $*
2 625 $ / м2*
1 комнатная 44/10/20 м2 3/25 эт.
єОселя
Новострой
С мебелью
Укрытие
Спецпроект
С ремонтом

Подольский район, Виноградарь, ЖК Варшавский 3. метро Нивки. Продажа: 1-к квартира ул. Змиенко Всеволода, 30. ЖК Варшавский 3. Дом сдан, введен в эксплуатацию, работаем по государственным программам. Квартира с качественным и стильным ремонтом. Квартира полностью укомплектована мебелью и техникой. Мебель выполнена на заказ. Круглосуточная охрана. На территории детские и спортивные площадки, сад, школа, уютные кафе и рестораны, салоны красоты, спортзалы и магазинчики. Все необходимое для активной современной жизни. Удобная транспортная развязка, 10 мин. на транспорте до метро Нивки. Цена 115500 у.е. с налогами. Моб.тел.0953570166, 0982402742 Наталья. Valion.ua/1139939

Обновлено: 01.04.2026

Продажа 1-к квартиры 46.97м2 ул. Всеволода Змиенко 15/23

75 000 $*
1 596 $ / м2*
Однокомнатная 47/19/18 м2 22/23 эт.
Без ремонта
Новострой
Укрытие
Спецпроект
После строителей

Продажа 1-к квартиры ул. Всеволода Змиенко 15/23. ЖК Варшавский 3. Функциональная планировка позволяет организовать как уютную зону для отдыха, так и рабочее пространство. Благодаря большим окнам квартира наполнена естественным светом. Окна выходят во двор, удобно и уютно. Прекрасно развитая инфраструктура: Рядом ТРЦ Ретровиль с множеством магазинов, кафе, ресторанов и развлечений. Рядом есть сады и школы для ваших детей. Цена 75 000 у.е. 0503932257 Марія valion.ua/1135044

Обновлено: 24.03.2026

Продажа 2-комнатной квартиры ЖК Варшавский 3

96 000 $*
1 371 $ / м2*
2 комнатная 70/28/16 м2 20/21 эт.
Без ремонта
Новострой
Переуступка
Спецпроект
После строителей

Продажа 2-комнатной квартиры в новостройке жилого комплекса Варшавский 3 после строителей. Сдача дома 3 квартал 2025г. Этаж 20 Планировка 2К1 Площадь 69.92 м2 Дом 10.2 Переуступка Территория комплекса закрыта от посторонних, а также оборудована системами видеонаблюдения и контроля доступа, что обеспечивает дополнительный уровень безопасности. Для жителей предусмотрены спортивные площадки, беговые дорожки и воркауты. Это создает идеальные условия для занятий спортом прямо рядом с домом. На первых этажах домов расположены магазины, кафе, аптеки, салоны красоты и другие заведения, делающие быт жильцов максимально удобным. За дополнительную стоимость есть паркоместа. Цена 96 000 у.е. Геннадий 0963198153 valion.ua/1130162

Обновлено: 25.03.2026

Продажа 1 квартиры 55 метров Варшавский +

85 000 $*
1 545 $ / м2*
Однокомнатная 55/17/21 м2 9/17 эт.
Без ремонта
єОселя
Новострой
Студия
Спецпроект
После строителей

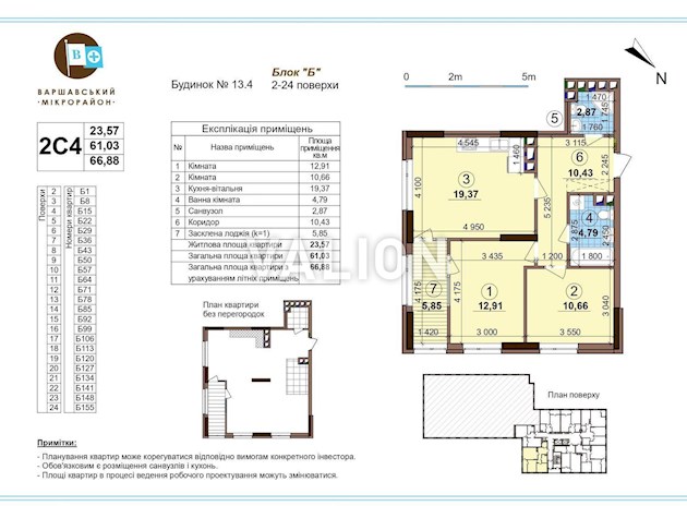
Продажа 55м2 1 комнатной квартиры в Подольском районе, Варшавский плюс. Выход станции метро запланирован в минуте от дома. Дом 13.4вторая очередь. 100% готовность. 9/26 S=55м. кв. Красивый дом графитово - бордового цвета, комфорт класса, панорамные окна, роскошная кухня 21 м. кв. с балконом, гардеробная. Отличная планировка для разделения Кухни Студио,Удачное место, отличная инфраструктура, перспектива развития одного из лучших микрорайонов Киева. Экологически чистое место, лес, озеро, 2 мин. Автомобиль на парковке ТРЦ Ретровилль будет виден из окон квартиры. Рядом с домом 1 мин многоэтажный паркинг. Не законченный ремонт . Цена 85000 у.е . 0963198153 Геннадий Парфилко Valion .ua/ 1067998

Обновлено: 25.03.2026

Продажа 1-к квартиры ул. Всеволода Змиенко 15/23

118 500 $*
2 693 $ / м2*
Однокомнатная 44/14/27 м2 5/23 эт.
Новострой
Укрытие
Спецпроект
С ремонтом

Продажа 1-к квартиры ул. Всеволода Змиенко 15/23. ЖК Варшавский 3. Генератор в доме. Вид во двор и в сторону Ретровиля. Техника Bosch, Кондиционеры Cooper Hunter, 20 инвертор, сплит система. Теплый пол. Стена декоративная штукатурка. 044 200 10 80 valion.ua/1146097

Обновлено: 27.03.2026

Продажа 1-к квартиры ул. В. Змиенко 13

70 000 $*
1 556 $ / м2*
Однокомнатная 45/0/15 м2 7/18 эт.
Без ремонта
Новострой
Укрытие
Спецпроект
После строителей

Продажа 1-к квартиры ул. В. Змиенко 13. ЖК Варшавский 3. Охрана 24/7+камеры. Коммерческая инфраструктура на первом этаже. 044 200 10 80 valion.ua/1145914

Обновлено: 05.03.2026

Продажа 3-к квартиры ул. Всеволода Змиенко 15/23

158 000 $*
1 859 $ / м2*
Трёхкомнатная 85/38/20 м2 22/23 эт.
єОселя
Новострой
Укрытие
Спецпроект
С ремонтом

Продажа 3-к квартиры ул. Всеволода Змиенко 15/23. ЖК Варшавский 3. Ремонт продуманный и стильный. Электричество: ~1км качественного медного кабеля + ~300м кабеля теплого пола, в каждой комнате и коридорах перекрестные выключатели, интернет розетки, освещение Maxus и т.д. 044 200 10 80 valion.ua/1145241

Обновлено: 07.04.2026

Продажа 1-к квартиры ЖК Варшавский 3 Виноградарь

74 000 $*
1 574 $ / м2*
1 комнатная 47/14/18 м2 11/23 эт.
Без ремонта
Возле метро
Новострой
Спецпроект
После строителей

Продажа Варшавский 3 Дом 10.8, квартира площадью 47 кв. 11-м этаже 23-х этажного дома. Ремонт после строителей. В квартире установлены стеклопакеты, радиаторы, счетчики. Дом имеет свою котельную, есть автономный электрогенератор (резервное питание). Квартира сдается в 3 квартале 2027 года. ЖК Варшавский-3 имеет закрытую территорию с детскими и спортивными площадками, охраной и видеонаблюдением. Есть консьерж, лифт, пожарная сигнализация, гостевой паркинг, грузовой лифт. Отличная транспортная инфраструктура, рядом аптеки, кафе, маркеты, лес и озеро. Строится метро. Окна выходят во двор. 044 200 10 80 Valion.ua/1144991

Обновлено: 05.03.2026

Продажа 2-к квартира ул. Всеволода Змиенко 30

165 000 $*
2 500 $ / м2*
2 комнаты 66/24/20 м2 18/25 эт.
Новострой
Укрытие
Спецпроект
С ремонтом

Продажа 2-к квартира ул. Всеволода Змиенко 30. ЖК «Варшавский-3» Окна в уютном дворе. Есть резервное питание – комфорт даже во время отключений. Просторная двухкомнатная квартира с готовым качественным ремонтом и полным комплектом техники. 044 200 10 80 valion.ua/1145098

Обновлено: 05.03.2026

Продажа 1-к квартиры ул. Всеволода Змиенко 19

140 000 $*
3 256 $ / м2*
1 комнатная 43/14/16 м2 14/26 эт.
Новострой
Студия
Укрытие
Спецпроект
С ремонтом

Продажа 1-к квартиры ул. Всеволода Змиенко 19. Видовая квартира. Окна выходят на восток. Квартира находится внутри дома, очень теплая и уютная. Квартира оборудована качественной дорогой бытовой техникой BOSCH: индукционная плита, вытяжка, микроволновка, духовой шкаф, холодильник, стиральная машина, бойлер на 80л. На полу качественный дубовый паркет, в ванной комнате – испанская теплая плитка. По всей квартире очень много мест для хранения, шкафа и даже отдельная гардеробная комната. Рядом отделения Новой Почты, множество салонов красоты, частных медицинских заведений, студия танцев, продуктовые магазины, кафе, кафе и рестораны. 044 200 10 80 valion.ua/1144894

Обновлено: 05.03.2026

Продажа 1-к квартиры ЖК Варшавский 3 Подольский район.

70 000 $*
1 667 $ / м2*
Однокомнатная 42/18/12 м2 18/23 эт.
Без ремонта
Возле метро
Новострой
Переуступка
Спецпроект
После строителей

Однокомнатная квартира в ЖК Варшавский 3, дом 10.3 Площадь 42,81 м2, 18 этаж из 23х. Дом с резервным питанием. Переуступка в офисе застройщика 044 200 10 80 Valion.ua/1143958

Обновлено: 05.03.2026

Продажа 1-к квартиры ЖК Варшавский 3 Подольский район

75 000 $*
1 829 $ / м2*
1 комната 41/15/15 м2 8/25 эт.
Без ремонта
Возле метро
Новострой
Спецпроект
После строителей

Продажа ЖК Варшавский 3, 1-к квартира. Квартира 43,5 кв м.4 этаж окна во двор. Дом 10.2 уже подали на сертификат, который будет сдан до конца года. Ключи в этом году. Состояние от застройщика. Метро Сырец . 044 200 10 80 Valion.ua/1143089

Обновлено: 23.03.2026

Продажа 1-к квартиры ул.Змиенко Всеволода 34/21 ЖК Варшавский 3

74 000 $*
1 805 $ / м2*
1 комнатная 41/15/18 м2 11/16 эт.
Без ремонта
Возле метро
Новострой
Спецпроект
После строителей

ЖК Варшавский 3 . Продажа однокомнатной квартиры с кладовой 1С7. Окна – во внутренний двор. 11 этаж 41,5 м2 , кладовка 4,6 м2 Отдельная комната, кухня – гостиная, санузел. Дом #10.10., ввод в эксплуатацию 4 квартал 2026 г. 044 200 10 80 Valion.ua/1142869

Обновлено: 05.03.2026

Продажа 1-к квартиры ул. Всеволода Змиенко 34/21

113 000 $*
2 690 $ / м2*
Однокомнатная 42/14/16 м2 11/25 эт.
Новострой
С мебелью
Укрытие
Спецпроект
С ремонтом

Продажа 1-к квартиры ул. Всеволода Змиенко 34/21. Кухня гостиная, спальня, гардероб, санузел смежный. Современный ремонт, качественные материалы. Мебель под заказ, техника Whirlpool, подготовка под кондиционер, телевизор 55 Samsung. Дом с генератором. 044 200 10 80 valion.ua/1142467

Обновлено: 05.03.2026

Продажа 1 -к квартиры Варшавский 3 ул.Всеволода Змиенко 34/21

112 000 $*
2 545 $ / м2*
1 комната 44/14/17 м2 22/25 эт.
Возле метро
Новострой
Переуступка
С мебелью
Спецпроект
С ремонтом

Продажа 1 комнатной кв. Варшавский 3 Дом. 7.8 ул.Всеволода Змиенко 34/21, дом. 7.8 по переуступке. 22 этаж 25-ти этажного дома. Квартира с качественным и стильным ремонтом, полностью укомплектована мебелью и техникой. Закрытый внутренний двор без автомобилей с детской площадкой и зонами отдыха. Круглосуточная охрана. Рядом с ЖК находится ТРЦ Ретровиль. На территории детские и спортивные площадки, садик, школа, уютные. кафе и рестораны, салоны красоты, спорт залы и магазинчики. Все необходимое для активного современного жизнь. Удобная транспортная развязка. До г. Нивки, Оболонь 7-12 мин. 044 200 10 80 Valion.ua/1142142

Обновлено: 05.03.2026
Индивидуальный подбор объекта от профессионалов
Количество комнат:
Це російськомовна версія

Інколи пошукові системи вважають, що користувачам потрібна саме вона, але завдяки цьому повідомленню ви можете змінити мову в один клік

Русский Українська
[gtranslate]