Продажа: 2 комнатная квартира ул. Героев полка Азов, 11-Б, Оболонский р-н
Киев, Оболонский , Оболонь, м. Оболонь
В избранные
Пожаловаться
Обновлено: 13.05.2026
474
67 500 $*
1 471 $ за м2*
Без комиссии
Записаться на просмотр
Описание
Обновлено: 13.05.2026
474

Продажа светлой и уютной 2-комнатной квартиры по адресу:
ул. Героев полка «Азов», 11-Б (бывшая – Маршала Малиновского).
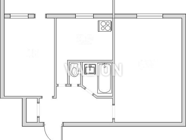
Основные характеристики:
— общая площадь – 45, 9 м²;
— жилая – 25, 7 м²;
— кухня – 6, 5 м²;
— раздельный санузел;
— просторный коридор;
— застекленный балкон;
— 9-й этаж из 9 (есть технический этаж);
— состояние – жилое, можно заезжать сразу.
Оснащение:
— комнаты оснащены мебелью;
— встроенная кухня;
— холодильник;
— микроволновка;
— вытяжка;
— стиральная машина;
— кондиционер;
— бойлер (отдельно проводимая проводка);
— счетчики на холодную и горячую воду;
— домофон;
— металлопластиковые окна.
Квартира расположена в одном из самых комфортных районов столицы – на Оболони, с максимально развитой инфраструктурой:
— 3 минуты пешком до станции метро «Оболонь»;
— 5 минут до ТРЦ «Dream Town» (шоппинг, кинотеатр, развлечения, спортклубы);
— рядом супермаркеты: Сильпо, АТБ, Varus.
Образование:
— детские сады и школы – в пешей доступности;
– детская школа искусств 5 имени Льва Венедиктова.
Сервисы и удобства:
— отделение Новая почта и укрпочта;
— банки, аптеки, кафе, салоны красоты.
Отдых и природа:
— Оболонская набережная (парк «Наталка») – идеальное место для прогулок;
— озера Иорданское и Кирилловское — рядом с домом.
Транспорт:
— удобное транспортное сообщение во все районы города;
— скорый выезд на основные магистрали.
Достоинства:
— выгодное расположение у метро;
— развитая инфраструктура «все рядом»;
— во дворе дома расположен продуктовый магазин и почтомат Новой почты;
— тихий, зеленый и безопасный район;
– идеально как для проживания, так и для инвестиции в аренду.
Эта квартира – тот вариант, когда не нужно выбирать между комфортом, локацией и ценой. Здесь уже все совмещено. Осталось только сделать шаг навстречу – и, возможно, именно это место станет вашим новым домом.
Цена – 67 500 y.е. Без %
Юлия Ивахно – 096 644 99 34
valion.ua/1148247

Кристально чистые сделки

Обеспечиваем лучшую юридическую поддержку и полную легальность всех сделок, которые проводим!

Сопровождение от А до Я

Гарантируем полный комлпекс сопровождения и проведения сделки. Делаем все возможное для облегчения процесса.

Характеристики
ID объекта:
1148247
Комнат:
2
Общая площадь:
45.9 м2
Жилая площадь:
25.7 м2
Площадь кухни:
6.5 м2
Этаж:
9/9
Тип дома:
Чешка
Ремонт:
Жилое состояние
Запись на просмотр объекта

С вами свяжется специалист по недвижимости, подтвердит выбранное время просмотра, организует посещение предложения и проведёт вам экскурсию.

Отправляя заявку, вы соглашаетесь на обработку персональных данных
Риэлтор**

В работе я руководствуюсь принципами ответственности, честности и внимательности к деталям. Буду доверчивы отношения с клиентами, ведь покупка или продажа жилья – это серьезный шаг. Моя цель – чтобы сотрудничество было комфортным, прозрачным и результативным.

Показать контакты

Похожие квартиры

Продажа 3к квартиры возле метро Оболонь, ул. Героев аолка Азов, 28а

95 000 $*
1 462 $ / м2*
3 комнатная 65/41/7 м2 2/9 эт.
Возле метро
Вторичный рынок
С мебелью
Укрытие
Спецпроект
Без ремонта

Вашему вниманию 3-комнатная квартира на Оболони, 2 этаж 9-этажного панельного дома (1974 г.) До метро 7–10 минут пешком. Дом ухоженный, чистый подъезд, установлены металлопластиковые окна на всех этажах. Квартира двухсторонняя, теплая и светлая. Перепланировка — раньше были проходные комнаты, сейчас все три комнаты отдельные, за счет этого продлили коридор. Просторная кухня с мебелью, газовой плитой, холодильником Samsung и стиральной машиной LG. Санузел раздельный, установленный бойлер на 60 литров. Есть кладовая. В квартире заменена проводка, установлены счетчики на воду (2024 г.), по всей квартире металлопластиковые окна. Комнаты раздельные: - Утепленная детская. - Спальня с двуспальной кроватью и шкафом, есть выход на балкон. - Большая комната с выходом на лоджию. Рядом школа, сад, поликлиника, магазины и остановки транспорта. До Днепра и парка Наталка примерно 10 минут пешком, хорошее место для прогулок и отдыха. Квартира находится в удобном месте – все необходимое рядом. Цена:95000 у.е. 0937119421 Екатерина vallion.ua/1144974

Обновлено: 31.03.2026
Риэлтор**

В работе я руководствуюсь принципами ответственности, честности и внимательности к деталям. Буду доверчивы отношения с клиентами, ведь покупка или продажа жилья – это серьезный шаг. Моя цель – чтобы сотрудничество было комфортным, прозрачным и результативным.

Показать контакты
Перезвоню вам и расскажу детали
Це російськомовна версія

Інколи пошукові системи вважають, що користувачам потрібна саме вона, але завдяки цьому повідомленню ви можете змінити мову в один клік

Русский Українська
[gtranslate]