! Цей об'єкт вже продано або зданий в оренду і не бере участі в результатах пошуку
Продаж без % 2к. квартири по вул. Літвиненко Вольгемут,1Б Борщагівка
Київ, Святошинський , Борщагівка
В обрані
Поскаржитись
Оновлено: 31.03.2026
410
48 000 $*
1 053 $ за м2*
Без комісії
Записатися на перегляд
Опис
Оновлено: 31.03.2026
410

Угода 25.11.2025 Ціна 48000уоПропонується до продажу без комісії чудова двокімнатна квартира на вулиці Литвиненко-Вольгемут, 1Б.
Це ідеальне місце для тих, хто цінує тишу, комфорт і зручність.
Цегляний будинок 1978 року. Газифікований.
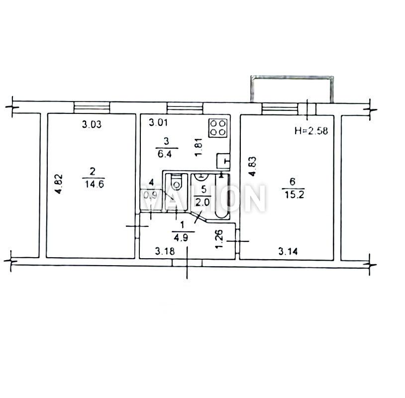
Квартира загальною площею 45,6 м² має продумане планування. Дві окремі просторі світлі кімнати 15,2 і 14,6 м² з вікнами у затишний двір — тиша, спокій і багато природного світла.
У квартирі зроблено легкий косметичний ремонт, дуже охайно й чисто.
Все готове для життя.
Залишається вбудована кухня та побутова техніка, що стане приємним бонусом для нових власників. У коридорі є вбудована шафа, яка зручно доповнює простір.
Металеві вхідні двері додають відчуття захищеності.
Металопластикові вікна збережуть тепло взимку і прохолоду влітку. Балкон засклений дерев’яними рамами, є додаткова шафа для зберігання речей.
У кімнатах — справжній дерев’яний паркет у чудовому стані, який створює атмосферу домашнього затишку.
Встановлені лічильники на воду та електроенергію.
Локація — справжня знахідка.
У пішій доступності одразу кілька зелених зон: парк Юність, парк імені Генерала Потапова, парк Інтернаціональний та озеро Вера. Все необхідне поруч — школи, дитячі садки, магазини, ринок Дніпро.
Ця квартира — місце, куди приємно повертатися.
Тиха вулиця, доброзичливі сусіди та відчуття спокою щодня.
Розглядаємо безготівковий розрахунок!
Телефонуйте, щоб домовитись про перегляд — можливо, саме тут починається ваша нова історія.
valion/ua 1140130

Кришталево чисті угоди

Забезпечуємо найкращу юридичну підтримку та повну легальність усіх угод, які проводимо!

Супровід від А до Я

Гарантуємо повний комплекс супроводу та проведення угоди. Робимо все можливе для полегшення процесу.

Характеристики
ID об'єкта:
1140130
Кімнат:
2
Загальна площа:
45.6 м2
Житлова площа:
29.8 м2
Площа кухні:
6.4 м2
Поверх:
2/5
Тип будинку:
Хрущовка
Ремонт:
Житловий стан
Інформація про будинок

вул. Литвиненко-Вольгемут, 1б

  • Стіни: цегляні
  • Поверховість: 5
  • Рік побудови: 1970
  • Тип будинку: хрущовка
  • Опалення: централізоване
  • Висота стелі: 2.5 м
Всі квартири в цьому будинку
Запис на перегляд об'єкту

З вами зв'яжеться спеціаліст з нерухомості, підтвердить обраний час перегляду, організує відвідування пропозиції та проведе вам екскурсію.

Надсилаючи заявку, ви погоджуєтесь на обробку персональних даних
Рієлтор**

Ріелтор агенції нерухомості Валіон. Допоможу з продажем та купівлею нерухомості в Ваших інтересах, максимально якісно виконую свою роботу. Буду рада допомогти та надати свої послуги.

Показати контакти

Схожі квартири

Продаж 2-к квартири вул. Зодчих 26

59 000 $*
1 311 $ / м2*
Двокімнатна 45/32/7 м2 4/5 эт.
Вторинний ринок
З меблями
З ремонтом
Хрущовка
Хрущевка
Жилое состояние

Продаж 2-к квартири вул. Зодчих 26. Квартира розташована на четвертому поверсі п’яти поверхового будинку загальною площою 45 кв. м., житловою 35 кв.м, кухня 7кв.м., дві роздільні житлові кімнати, квартира повністю укомплектована меблями та побутовою технікою, має гарний житловий стан, є засклений балкон. Район має розвинену інфраструктуру у пішій доступності розташовані супермаркет «Фора», поруч школа, дитячий садок, сучасний спортзал, відділення Нової Пошти, кафе, Гарна транспортна розв’язка дозволяє швидко дістатися до будь-якої точки міста, зупинки громадського транспорту. Найближчі станції метро - Житомирська або Святошин. Неподалік проходять маршрути швидкісного трамвая. Поруч парк «Юність», парк ім. Генерала Потапова, парк «Інтернаціональний», озеро Віра. Запрошуємо на перегляди! Ціна 59000 у.о. Марина 0953330317 0688400098 valion.ua/1145923

Оновлено: 23.04.2026

Продаж 1-к квартири, вул.Дзюби Івана (Сім’ї Сосніних) 6 Святошинський район

48 800 $*
1 574 $ / м2*
1 кімнатна 31/15/7 м2 3/5 эт.
Біля метро
Вторинний ринок
З меблями
З ремонтом
Хрущовка
Хрущевка
Жилое состояние

Продаж однокімнатної квартири за адресою вул. І. Дзюби 6, Борщагівка. Загальна площа – 31 кв.м., житлова – 15 кв.м., кухня – 6,5 кв.м. Зручний третій поверх, косметичний ремонт. У квартирі встановлені лічильники газу, води, електроенергії. Є холодильник, телевізор, меблі для першої потреби. Добре розвинена інфраструктура: поряд школи, дитячі садки, магазини, аптеки, парки, бювет. До центру міста можна швидко дістатись на швидкісному трамваї, або маршрутці. Ціна -48800 у.о., 0661825672 Катерина, Valion.ua/1144420

Оновлено: 31.03.2026

Продам 2 кімнатну квартиру по вул. Верховинця, 10

79 990 $*
1 270 $ / м2*
Двокімнатна 63/30/10 м2 11/14 эт.
Біля метро
Вторинний ринок
З меблями
Укриття
Спецпроект
С ремонтом

Продам 2 кімнатну квартиру по вул. Верховинця, 10, 11/14 пов., 63/30/10.м2. . Квартира з двома балконами, з ремонтом, меблями та необхідною технікою, роздільні кімнати, роздільні саузли, ванна..Парадне - бронедвері, магнітний ключ, консьєрж, два ліфти. Добре розвинена інфраструктура: магазини, аптека, кафе, стадіон, спорт. майданчики, парковка. Зручна транспортна розв'язка: трамвай, електричка, маршрутні таксі та соц.транспорт у різноторонному напрямку, Ціна 79990 у.о., Оксана 067 724 12 86 , valion.ua/1141897

Оновлено: 28.04.2026

Продаж 2 кімнатної квартири по вул. Булгакова 12

73 000 $*
1 327 $ / м2*
Без комісії
Однокімнатна 55/26/8 м2 2/5 эт.
єОселя
Новобудова
Укриття
Монолит
С ремонтом

Продається 1-кімнатна квартира по вул. Булгакова, 12. На другому поверсі п’яти поверхового будинку 2015 року забудови. Загальна площа 55 кв.м., житлова 26 кв.м. Простора кухня-вітальня, окрема спальня з гардеробною, балкон. Міські комунікаціі: вода, каналізація, електрика. Індивідуальне електричне опалення, підігрів підлоги в санвузлі. У дворі є місця для паркування машин. Квартира після ремонту - ніхто не проживав. Розвинена нфраструктура: школи, садки, супермаркети. Поруч зупинка міського транспорту, швидкісний трамвай, до метро Шулявська, Вокзальна - 20 хвилин. Ціна 75 000 у.е. Без комісії Моб. (096) 59-43-044 Вита, valion.ua/1080320

Оновлено: 31.03.2026

Продаж 2 кімнатної квартири по вулиці Булгакова, 12

67 000 $*
1 218 $ / м2*
Без комісії
Однокімнатна 55/26/8 м2 3/5 эт.
Новобудова
Укриття
Монолит
С ремонтом

Продаж 1-імнатної квартири по вулиці Булгакова, 12. Квартира знаходиться на третьому поверсі п’ятиповерхового будинку. Має загальну площу 55 м², житлову 26 м². Складається з кімнати, кухні, ванної кімнати,коридору, балкону. Ванна кімната має все необхідне, включаючи сучасну сантехніку та бойлер для постійного гарячого водопостачання. Квартира продається з мінімальною кількістю меблів, що дозволить Вам створити власний дизайн та інтер'єр. В будинку індивідуальне електричне опалення. Квартира обігрівається за рахунок керамічних панелей та теплої підлоги в санвузлі. В дворі є місця для паркування автомобілів. Зручне розташування квартири дозволить легко дістатися до будь-якої точки міста. У районі є все необхідне для комфортного життя, включаючи магазини, кафе, ресторани та супермаркети. Поруч зупинка міського транспорту, швидкісний трамвай, до метро Шулявська, Вокзальна - 20 хвилин. Ціна 67 000$, без комісії Моб. (096) 59-43-044 Віта, valion.ua/1080323

Оновлено: 31.03.2026
Рієлтор**

Ріелтор агенції нерухомості Валіон. Допоможу з продажем та купівлею нерухомості в Ваших інтересах, максимально якісно виконую свою роботу. Буду рада допомогти та надати свої послуги.

Показати контакти
Передзвоню вам та розповім деталі
Записатися на перегляд
[gtranslate]